凈化車間和無塵車間風淋室廠家設計、生產、安裝
當前位置:首頁 >> 風淋室技術文章 >> 正文凈化車間和無塵車間風淋室廠家設計、生產、安裝:凈化車間和無塵車間建設中需要的凈化設備其中就風淋室,在無塵車間的建設中,有很多客戶對潔凈等級高低有那些差別具體都不是很清楚,經常碰到客戶咨詢萬級的是什么樣的,大概要多少錢,十萬級又是什么樣的,他們之前到底差多少,今天梓凈凈化設備技術設計就針對大家所提出的問題簡述一下影響無塵車間在造價成本上的幾大因素:
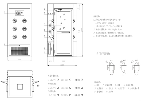
風淋室是進入無塵車間除掉人衣服或者物品上靜止的灰塵的裝置,并且隔離無塵室與外界(或者無塵室不同等級車間)空氣的裝置,禁止普通空氣進入無塵車間,以免造成車間空氣污染。
一、凈化車間和無塵車間風淋室廠家設計、生產、安裝,空間因素:
空間因素有車間面積和車間層高兩個方面組成,它直接影響內部裝修圍護的成本:彩鋼板隔墻及天花面積;空調投入成本:所需空調負荷的區域體積、空調的送回風方式、空調的管路走向及空調末端的數量。
避免因空間原因導致增加,籌建商可以從兩個方面綜合考慮:不同的生產工藝設備的工作空間(含移動、維護檢修的高度或寬度余量);工作人流及物流的空間走向。目前建筑遵循節地、節材、節能的原則,所以凈化車間并不是更高大就更好,籌建時切實的考慮自身生產工藝設備及流程,能有效的規避不必要的成本。
二、凈化車間和無塵車間風淋室廠家設計、生產、安裝、溫濕度及潔凈度因素:
溫濕度和潔凈度都是為工業產品量身定做的車間環境標準數據,是凈化車間的設計依據,是產品合格率及穩定性的重要保障。現行標準分為標準、地方標準、行業標準、企業內部標準。如潔凈度等級分級標準、醫藥行業GMP標準等屬于標準,對于大部分制造工業,主要是依據自身產品特性來確定各個生產流程凈化車間的標準。
如,PCB行業的曝光、干膜、阻焊區溫濕度在22±1℃、55±5%,潔凈度在千級到十萬級不等;鋰電池行業則比較注重低濕度控制,一般相對濕度去到20%以下,一些相當嚴格的注液車間需控制在相對濕度1%左右。
定義凈化車間的環境數據標準,是影響項目關重要的中心點。潔凈度等級的制定影響裝修成本:定在十萬級及以上等級,要求有必要的潔凈板材圍護,凈化門窗、人員和貨物風淋傳遞設施,甚至價格昂貴的高價地板;同時也影響空調成本:潔凈度越高,滿足凈化必要的空調換氣次數就越大,所需凈化風柜的風量就越大,風水管及末端高效風口量也隨之增加。
同理車間溫濕度的制定,不僅也有上述成本問題,還有控制精確度的因素,精確度越高,所需的配套設備要越齊全。如相對濕度范圍精確到±3%±5%的時候,所需設計的加濕設備及除濕設備都要完備。
車間溫濕度和潔凈度的制定,不單只影響前期投資,對于一個基業長青的廠房來講后期的運行成本也是極為重要,所以根據自身生產產品的特性,結合國標、行標以及企業內部標準,合理制定出符合自身需求的環境數據標準是籌建凈化廠房最基礎、根本的一步。
三、凈化車間和無塵車間風淋室廠家設計、生產、安裝、其他影響因素:
除了空間、環境兩大塊要求之外,有些影響凈化車間達標的因素經常被設計方或者籌建商忽略,導致溫濕度超標。
比如,外界氣候考慮不全面、未考慮設備排氣量、未考慮設備發熱量、未考慮設備產塵量、未考慮大量人員同時工作產濕量等等。
綜上所述,萬級和十萬級到底差多少錢?在問這個問題前,合理的做法是先明確凈化車間生產設備的參數(長寬高、排氣量、發熱量、產塵量),制定出滿足自身需要的車間面積、層高、溫濕度和潔凈度要求,再交于設計方設計出一套合理的綜合凈化方案。作為籌建方不僅充分清楚自身需求,而且還能以此原則貫穿整個項目的設計、采購、施工、驗收、試生產的質量、成本及進度控制。
廣州梓凈所提供的空氣凈化產品及設備有風淋室,貨淋室,初效過濾器,中效過濾器,高效過濾器、超凈工作臺,潔凈工作臺,傳遞窗,風淋室配件,風淋室控制器,化學過濾器,FFU風機過濾單元,空氣自凈器,潔凈棚,新風柜,過濾柜,通風柜,洗手池,潔凈采樣車,送風天花,高風效送口等等潔凈室及配套用凈化產品等。無塵車間凈化設備廣泛應用于電子、半導體、生物制藥、食品加工、核工業、汽車制造業,空調暖通業行業和領域等。
梓凈從凈化設備與凈化工程,無塵車間承建商,無塵車間工程,無塵車間建設,無塵車間潔凈度測試,無塵車間解決方案,百級無塵車間,千級無塵車間,萬級無塵車間,無塵車間標準,無塵車間施工,無塵車間設備,無塵車間設計、無塵車間施工、無塵車間維護,無塵車間亦稱凈化車間或無塵室潔凈室。
“梓凈”牌空氣凈化設備產品質量保證:
1、我司出產的”梓凈”牌空氣凈化設備及空氣過濾器產品已獲國內;
2、為滿足客戶對潔凈室的高品質要求,我司生產出廠的每一臺空氣凈化設備都經過我司質檢員的嚴格檢查,符合產品質量標準方可出廠;空氣過濾器都在標準萬級無塵車間內生產、檢測。
3、產品交付驗收完畢后,我司將對貴司及所訂購產品建立獨立的檔案,以便與我司長期的為貴司提供優質、及時的服務。
4、產品包裝:木箱或紙箱包裝;
5、發貨方式:貨運;
6、交貨時間:合同簽訂后我司收到貨款之日起5個工作日內完成生產,3個工作日內到貨;
服務宗旨:
7、公司出產的”梓凈”牌空氣凈化設備及空氣過濾器可提供長期的支持;
8、故障受理:省外48小時,省內24小時;
原文來源:廣州梓凈http://m.panggonan.com/